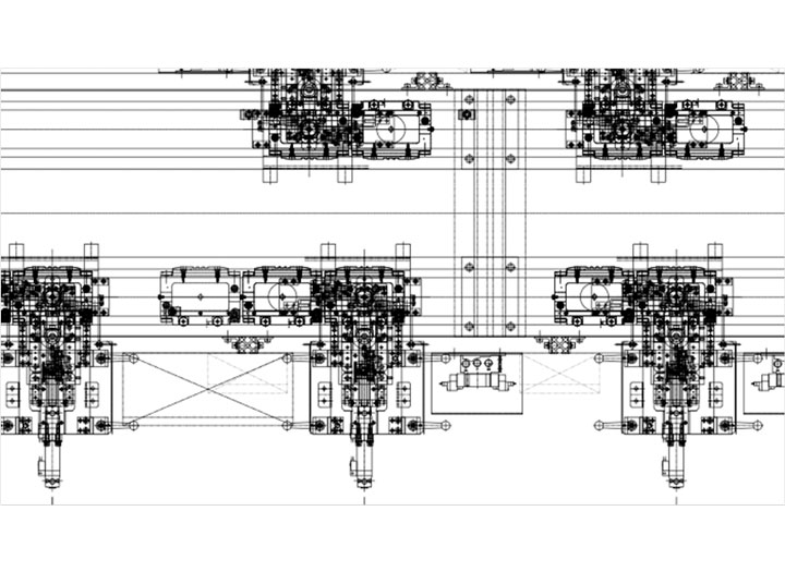
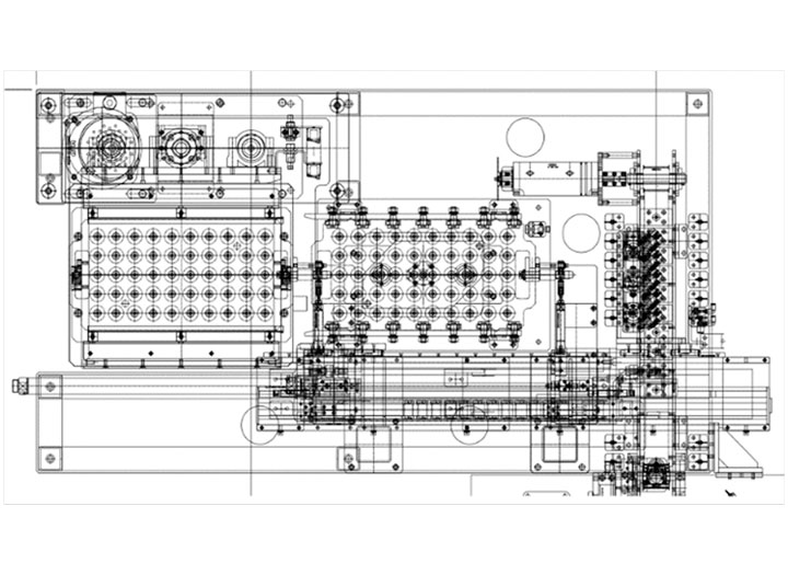
Auto sensor assy Auto sensor assy system 페이지 정보 작성자 FIMS 댓글 0건 조회 274회 작성일 25-10-27 12:43 목록으로 PREVIOUSAuto sensor assy system 25.10.27 NEXTAuto sensor assy system 25.10.27 본문 Detail view 목록